ASILO NIDO AZIENDALE | RESTAURO CONSERVATIVO

Villa Bacherelli, Firenze 2007- 2008

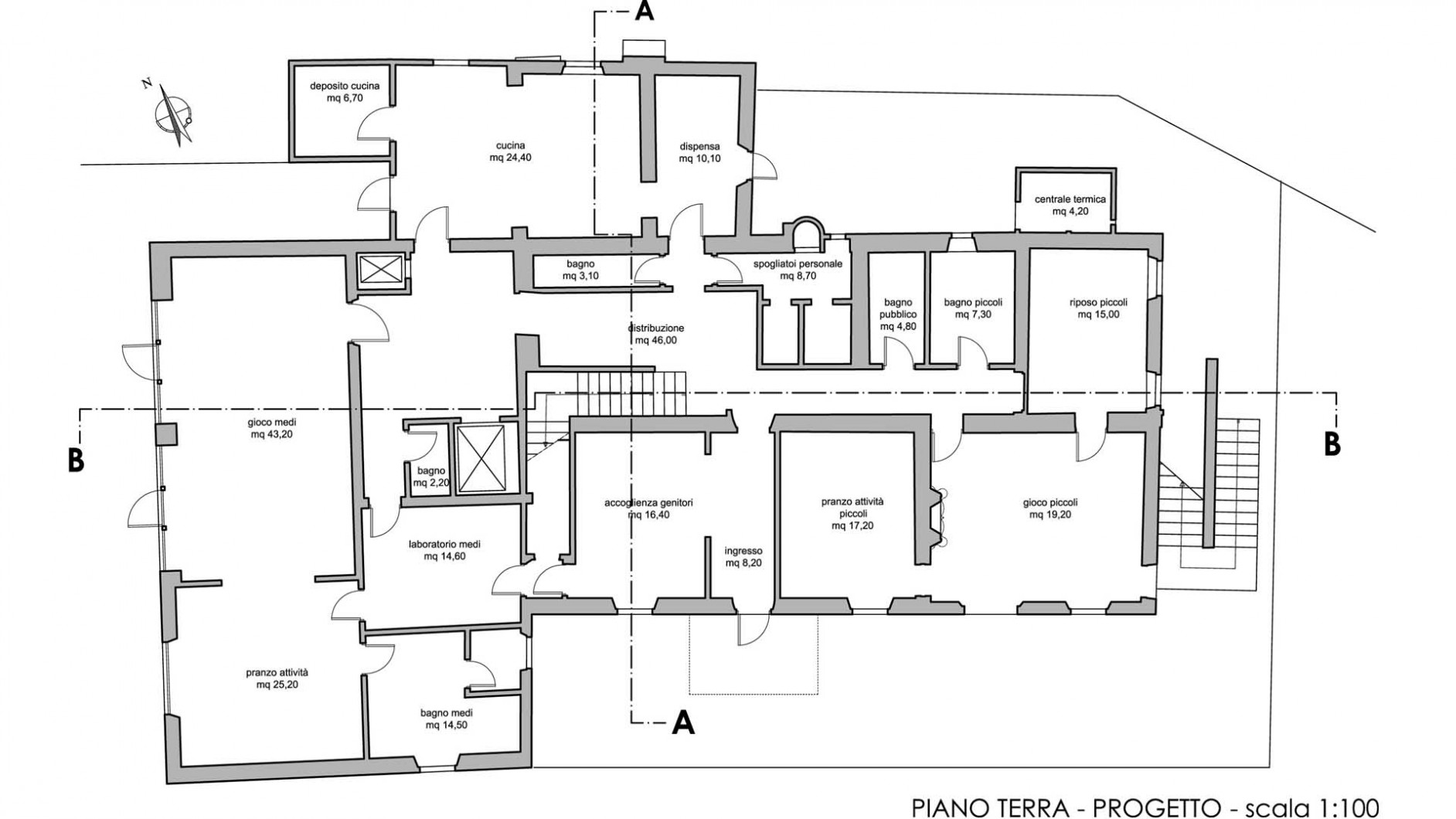
In un immobile vincolato dalla Soprintendenza, situato a Firenze nei pressi della nuova sede della Cassa di Risparmio, il Comune di Firenze ha deciso di realizzare un asilo nido aziendale per i dipendenti della Cassa. La villa, risalente probabilmente alla prima metà dell’ottocento si è trovata inserita in un contesto ambientale, risultato dell’urbanizzazione del secondo dopoguerra. La caratteristica di maggior pregio dell’immobile riguarda la presenza di alcuni affreschi a firma di Ottone Rosai in tre stanze del piano primo. Il progetto nasce con l’obiettivo di adattare e organizzare all’interno della ex villa Bacarelli un asilo nido per circa 65 bambini fra 0 e 3 anni, offrendo una adeguata articolazione in sezioni e attività distinte secondo le esigenze didattiche e di gestione. La soluzione prescelta, distribuisce sui due piani dell’edificio le tre sezioni di asilo nido, sfruttando ogni vano possibile, predisponendo una serie di interventi per riportare i vari ambienti alla stesso livello, dato che allo stato attuale sono presenti molti dislivelli interni.

 

 

PROJECT OVERVIEW
Anno: 2007-2008
Committente: Immobiliare Nuova Sede per Cassa di Risparmio di Firenze
Classe e categoria: Id
Dati dimensionali: sup: 800 mq, vol: 3200 mc
Gruppo di progettazione: prof. Paolo Spinelli - GPA Ingegneria s.r.l., 
                                        Fagnoni & Associati Architetti, 
                                        CMZ Studio associato, Setin Engineering
Collaboratori: arch. Edoardo Vannucci, arch. Cinzia Angeli
Prestazioni svolte: studio di fattibilità, progettazione preliminare, definitiva

Lascia un commento

Il tuo indirizzo email non sarà pubblicato. I campi obbligatori sono contrassegnati *